合肥市軟件園可盟電子辦公裝修工程
| 項目名稱 | 合肥市軟件園可盟電子辦公裝修工程 | 行業屬性 | 互聯網/電商/科技 |
| 項目地址 | 合肥市高新區軟件園4號樓 | 項目造價 | 54.7萬 |
| 主關鍵詞 |
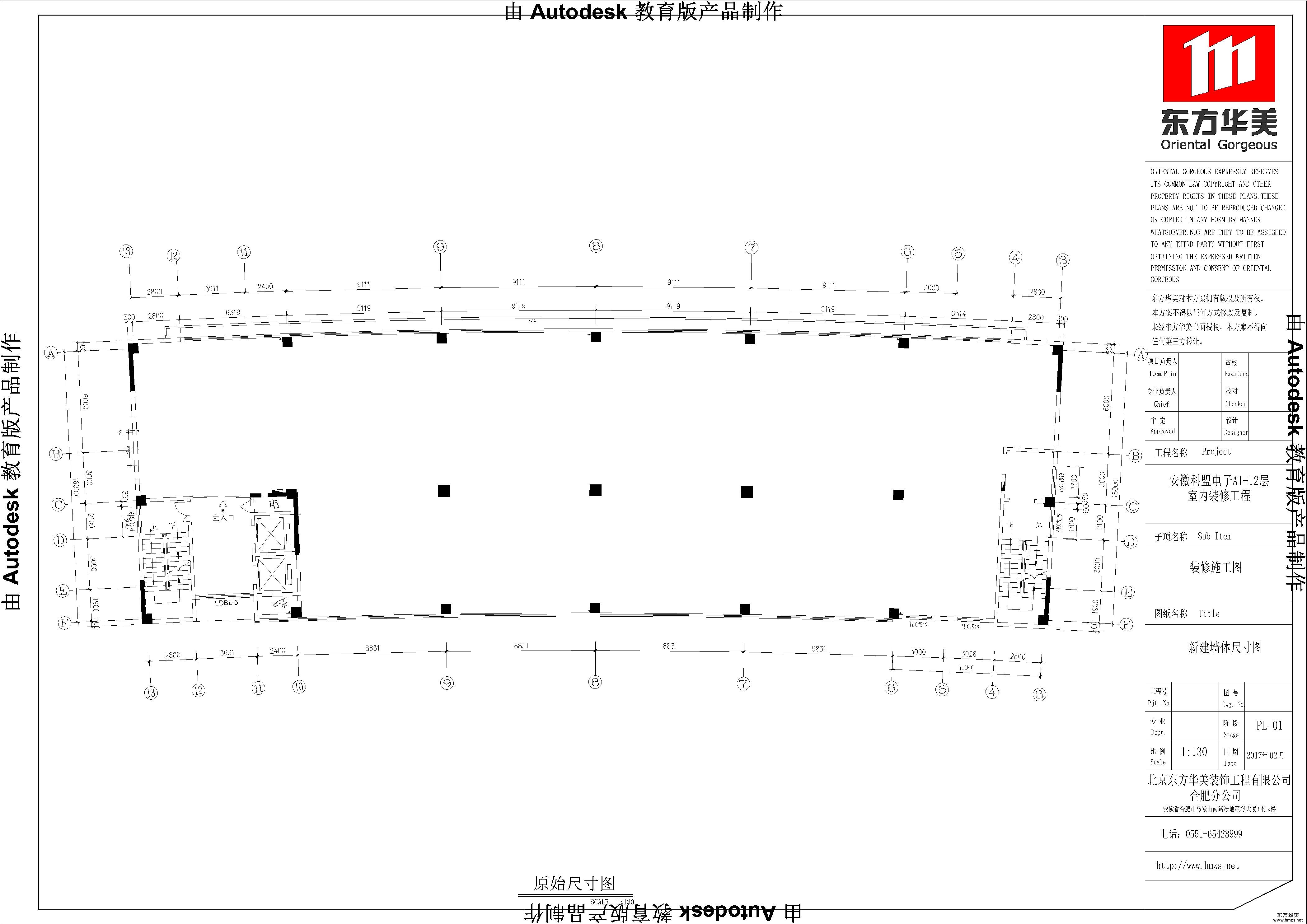
▄原建筑結構分析: 該項目面積為800平方米。甲方希望我們在設計方案里可以體現一個現代的互聯網公司的創新能力,我們的設計師在了解到這一需求之后,將公司辦公空間的裝修風格定位現代簡約的氣質,打造優質的辦公空間。
▄設計需求: 合肥科盟電子科技有限責任公司是一家科技公司,為了滿足空間的使用需求,設計師根據原始空間的情況,并結合甲方的要求,將空間劃分為前臺接待區、公共辦公區、接待室、會議室、總經理辦公室、財務室、雜物間、檔案室、茶水間、走廊。
▄設計風格定位: 設計理念之源“人性化設計”現代辦公空間著重體現工作與生活的有機融合?!皞€性化設計”在企業整體形象上其獨特的個性直接影響著每一個員工的行為舉止,個性化辦公空間非常重要的一點就是展現企業形象,滿足企業精神和發展理念。 這個空間本著又簡潔、又具體、又系統、又實用的定義,采用時尚簡約風格進行裝修設計,主要是用銀灰色金屬質感散發出耀眼真實的光芒,搭配藍色體現出一種科技行業的氣息。張揚不羈的個性、感官刺激享受,優美別致的意境,舒適激情的放松,這樣的氛圍下,人們不由得舒展疲憊的神經、釋放工作的能量。


北京鑄誠大廈辦公裝修工程
北京銀河SOHO辦公裝修工程
301醫院裝修工程
